お問い合わせはこちら
コンクリート構造物の補修・補強に関するフォーラム、コンクリート構造物の補修・補強材料情報
Googleサイト内検索
トップページ
新着情報
当協会について
フォーラム
プレスリリース
技術資料
Q&A
お問い合わせ
トップページ
施工事例
上関大橋
施工事例
上関大橋
事業区分
その他
劣化機構
ASR
適用工法
ASRリチウム工法
発注者
山口県
工事場所
山口県
工事時期
2012年2月~2012年7月
主な使用材料
プロコン40
他 使用材料
施工数量
橋台2基
工事概要
施工後の残存膨張量試験にカナダ法を適用し、ASR膨張抑制効果が得られていることを確認した。
施工者
極東興和株式会社
参考写真
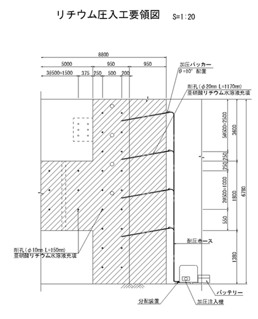
内部圧入工施工図 正面図
内部圧入工施工図 側面図
前のページに戻る
トップページ
新着情報
当協会について
会長挨拶
当協会の歩み
当協会の活動
組織図
会員名簿と入会申し込み
亜硝酸リチウムを使用したコンクリート補修技術
橋梁の維持管理に関する新技術フォーラム
申込フォーム
講師紹介ページ
橋梁の維持管理に関する新技術フォーラム2025
橋梁の維持管理に関する新技術フォーラム2024
橋梁の維持管理に関する新技術フォーラム2023
フォーラム
2025 フォーラム 案内
講師紹介ページ
CPD・CPDSについて
2025オンラインフォーラム
2025フォーラム開催状況
2024オンラインフォーラム
2024フォーラム開催状況
2023オンラインフォーラム
2023フォーラム開催状況
2022フォーラム開催状況
2021フォーラム 講演動画
2020フォーラム 講演動画
活動・講演・見学会報告
総会
材料ロス率 ひび割れ深さの推定
材料の使用期限について
施工事例
技術資料
書籍のご注文
経年供試体のご注文
カタログダウンロード
リハビリ工法 施工動画
小規模橋梁の簡易点検要領 NET版
小規模橋梁の簡易点検要領のご注文
小規模橋梁ビデオ
プレスリリース
Q&A
コンクリート劣化写真
鋼構造物有機系塗膜Q&A
会員専用ページ
コンクリート診断士合格部屋
(一社)セメント協会
リンク集
お問い合わせ
サイトマップ
一般社団法人
コンクリートメンテナンス協会
〒730-0053
広島市中区東千田町2-3-26
Mail : info@j-cma.jp
TEL:082-541-0133
FAX:082-243-6444
NP-CMS ver5.162
by Netprompt
MENU